Gå til: Plantegninger | Fasade | Kontaktskjema
231 – BORGUND
HERSKAPSVILLA MED ALT DU KAN DRØMME OM
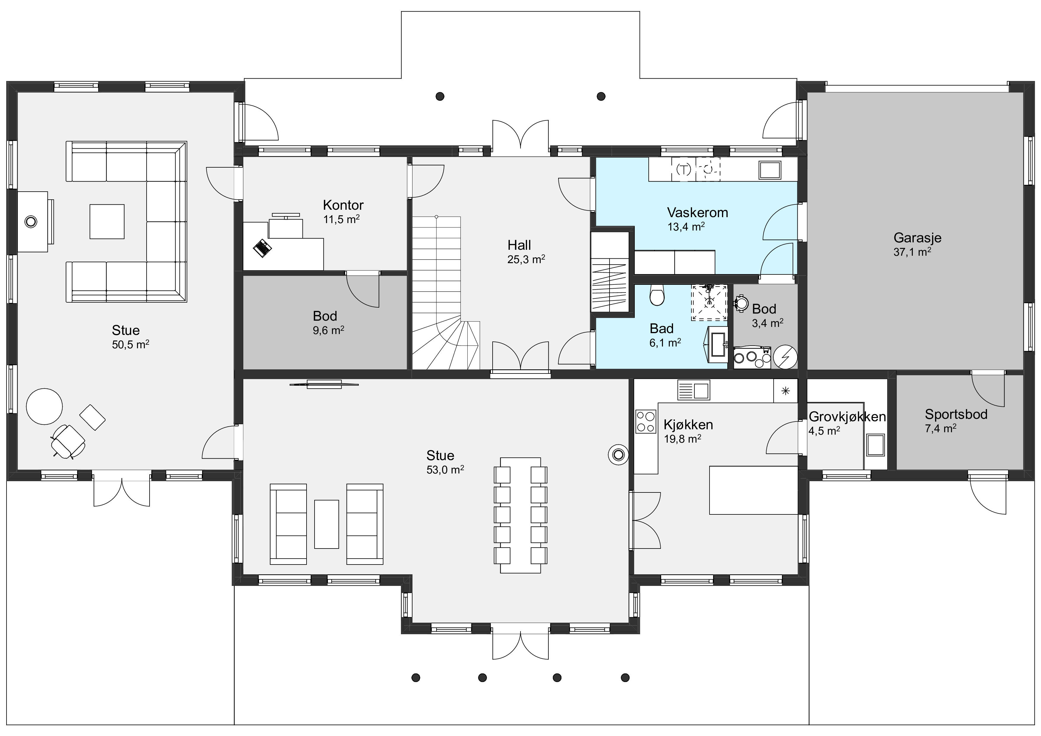
Borgund er en ekstraordinær villa for deg med utpreget sans for det overdådige, det elegante og det gjennomtenkte. Dette er ikke bare et hjem – det er et sted for store drømmer, romslige dager og minnerike øyeblikk. Her får du alt du trenger, og mer til. Fire stuer gir deg rikelig med plass til både hverdagsliv og selskapelighet, og et fleksibelt romprogram gjør det mulig å tilpasse boligen akkurat slik du ønsker det.
Vil du ha flere oppholdsrom? En eller to separate utleieenheter? Et hjemmekontor, treningsrom eller kanskje en integrert garasje? Med Borgund er valgmulighetene mange, og du står fritt til å sette sammen et hjem som dekker både dagens behov og morgendagens ambisjoner.
Boligen kan bygges med eller uten sidefløyer, noe som gir deg stor frihet til å forme hjemmet over tid. Kanskje du planlegger én fløy nå, og en annen senere – etter hvert som familien vokser og behovene endrer seg. Modulene kan inneholde alt fra ekstra stuer og soverom til egne innganger, utleiedeler eller en romslig garasje med direkte adkomst til boligen. Uansett hva du drømmer om, kan Borgund tilpasses dine visjoner – enten du vil ha en herskapelig bolig med klare linjer eller et moderne familiehjem med mange soner og funksjoner.
Borgund er for deg som tenker stort og ønsker en bolig som gir rom for både mennesker og muligheter. Her er det plass til storfamilien, overnattingsgjester, generasjoner og livsfaser. En bolig å vokse i – og å bli værende i.
TEKNISK DATA MED SIDEFLØYER
ØNSKER DU MER INFORMASJON?
FYLL UT SKJEMAET, SÅ KONTAKTER VI DEG FOR EN HYGGELIG BOLIGPRAT
ARKITEKT
ALT KAN TILPASSES FOR Å IMØTEKOMME DERES ØNSKER OG BEHOV
Fordelene med å bygge et helt nytt hus, er at du kan få det akkurat slik som du vil. Trolig finner du en husmodell i vår katalog som kan passe, men kanskje ønsker du å tilpasse boligen etter egne ønsker og behov.
Vi vil gjøre vårt ytterste for at du skal bi fornøyd, og hjelper deg hele veien fra idé til ferdig bolig. Vi har fagkunnskap og gir gode råd for at du skal få bygget en bolig som passer deg helt perfekt.










